Villa en Cabo Roig, Costa Blanca

Cabo Roig / Alicante Ref: DD2440 Villa. Nuevo

Ref: DD2440

950.000

Cabo Roig / Alicante Ref: DD2440 Villa. Nuevo

  • Metros
    Metros 300m2
  • Parcela
    Parcela 1200m2
  • Habitaciones
    Habitaciones 6
  • Baños
    Baños 6
  • Piscina
    Piscina

Descripción general

Vistas al mar
Cerca del mar

Descripción general

  • Metros
    Metros 300m2
  • Parcela
    Parcela 1200m2
  • Habitaciones
    Habitaciones 6
  • Baños
    Baños 6
  • Piscina
    Piscina

Vídeos

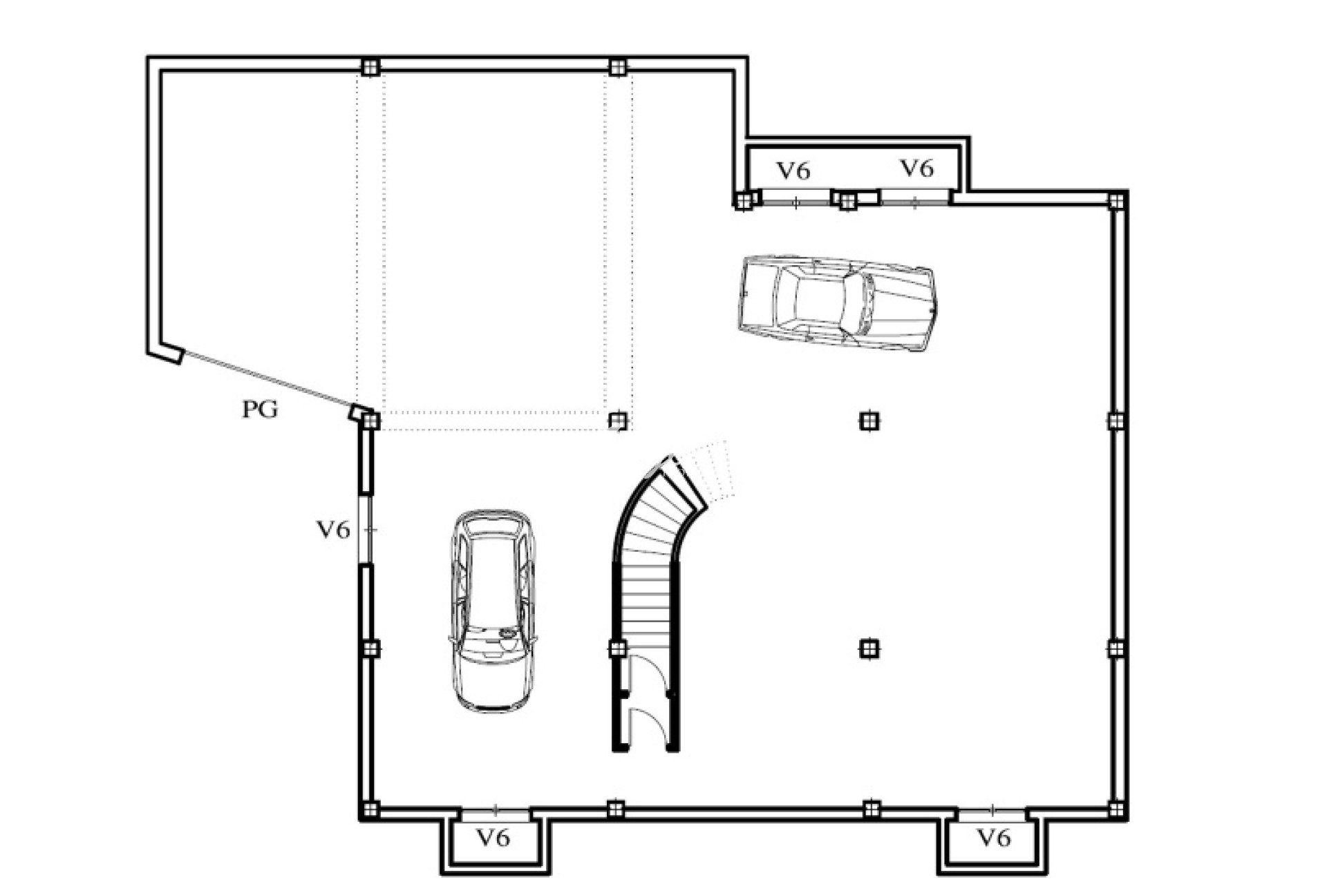
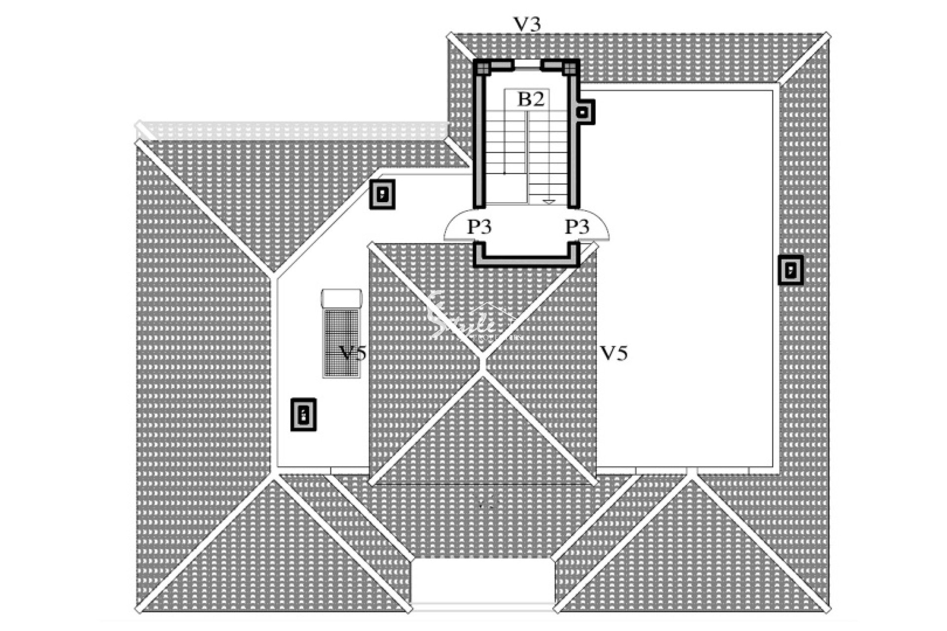
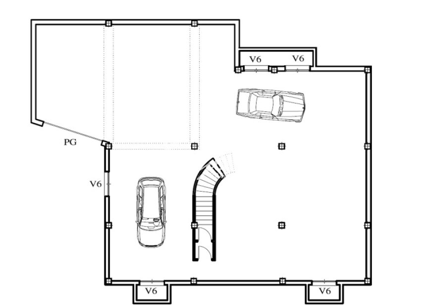
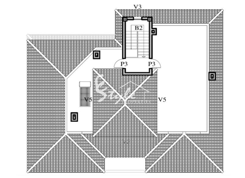
Descripción

Villa en construcción en Cabo Roig, Costa Blanca

Vídeos

Localización

Realizar una consulta

Responsable del tratamiento: Consulting and Investments E-Style, SL, Finalidad del tratamiento: Gestión y control de los servicios ofrecidos a través de la página Web de Servicios inmobiliarios, Envío de información a traves de newsletter y otros, Legitimación: Por consentimiento, Destinatarios: No se cederan los datos, salvo para elaborar contabilidad, Derechos de las personas interesadas: Acceder, rectificar y suprimir los datos, solicitar la portabilidad de los mismos, oponerse altratamiento y solicitar la limitación de éste, Procedencia de los datos: El Propio interesado, Información Adicional: Puede consultarse la información adicional y detallada sobre protección de datos Aquí.
¡Hablemos! Contactar