852.460€
Located in the charming Ciudad Quesada, this exclusive collection of three detached homes offers an ideal setting for those seeking tranquility and comfort. The property type is "Detached", ensuring privacy and a unique personal space. Ciudad Quesada is known for its welcoming atmosphere and proximity to essential services, making it a prime location to establish a home. The homes are designed to offer maximum comfort and functionality, with a layout that adapts to the modern needs of any family. The proximity to the sea, just 4 km away, allows enjoyment of the beaches and Mediterranean climate, while the airport is 40 km away, facilitating international travel.
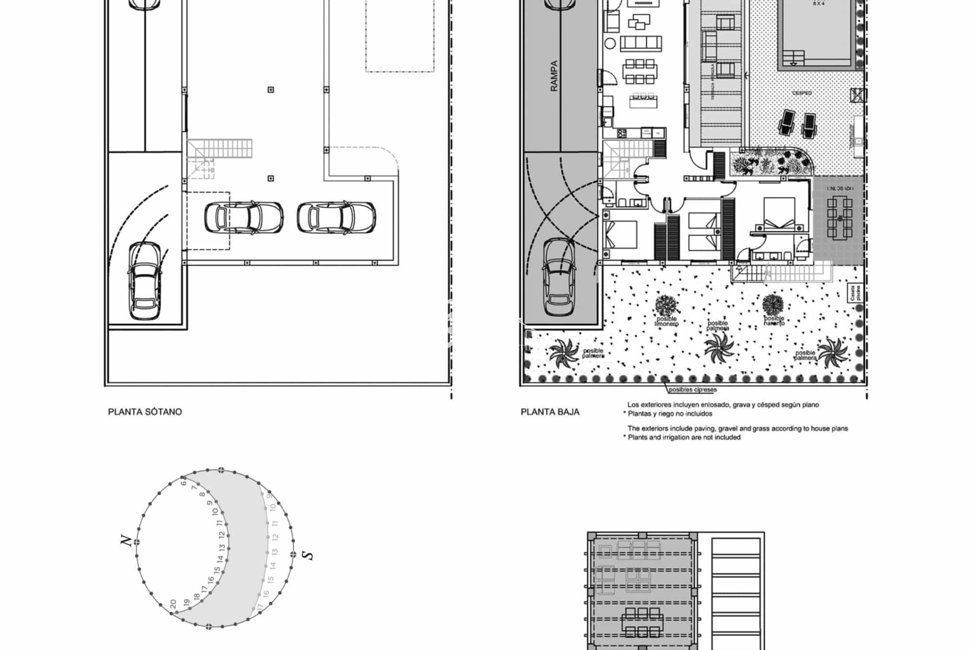
OUTDOOR AREAS
The exteriors of these detached homes are designed to make the most of Ciudad Quesada's climate. Each property features a private garden, ideal for creating a personal oasis of tranquility. The presence of a private pool adds a touch of luxury, allowing for refreshing dips on the hottest days. Additionally, the terraces offer a perfect space for outdoor relaxation or family meals. The inclusion of a pergola provides shade and a cozy place to rest. The solarium is another attraction, offering additional space for sunbathing or enjoying panoramic views of the area.
INDOOR AREAS
The interior of these detached homes is designed to offer comfort and style. With options of 3 bedrooms and 2 or 3 bathrooms, the properties cater to different family needs. Porcelain stoneware floors add a modern touch and are easy to maintain. Built-in wardrobes in the bedrooms optimize storage space, maintaining order and functionality. The layout includes a garage, adding convenience and security for vehicle parking. The presence of an indoor jacuzzi provides a personal relaxation space, ideal for unwinding after a long day.